Rupert Crescent, Queniborough, LE7
- Full Details
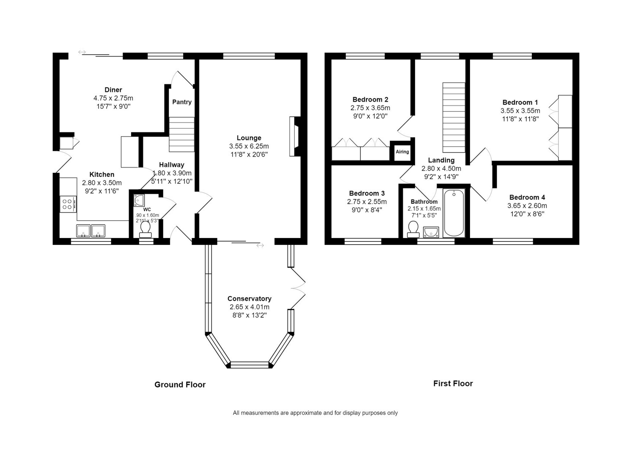
- Floor Plans
- EPC
- Map
- Virtual Tour
- Stamp Duty
- Rental Yield Calculator
Full Details
Full Details
Fair-Way Properties is pleased to offer this well presented 4 bed detached property located in the highly sought after village of Queniborough. Downstairs the property briefly comprises of an entrance hallway with downstairs WC, a spacious lounge benefitting from a gas fire, and a double glazed conservatory overlooking the garden. There is also a large kitchen / diner which leads to the front garden. Upstairs on the first floor there are 3 double bedrooms 2 with built-in storage, a large single bedroom, and there is also a family bathroom with a mixer shower over the bath. To the front of the property there is a large tarmac driveway providing parking for 3 vehicles and a freestanding double garage complete with power. To the rear of the property there is a stunning garden featuring a large lawn, several mature trees, a gravelled seating area and a wooden summer house. The property backs on to Queniborough brook and boasts views over the open fields behind. The property benefits from double glazing and gas central heating throughout.
Hallway: 1.80m x 3.90m (5'11" x 12'10"), The hallway is accessed via a UPVC double glazed door which leads to the lounge, the kitchen / diner, and the downstairs WC. There is also a staircase which leads to the first floor. The room features solid oak floors and a gas central heating radiator.
Lounge: 3.55m x 6.25m (11'8" x 20'6"), The lounge is the full length of the house and features a gas fireplace with marble surround, a large UPVC double glazed window overlooking the front garden, a smaller UPVC double glazed window overlooking the driveway and a UPVC double glazed sliding patio door which leads to the conservatory.
Conservatory: 2.65m x 4.00m (8'8" x 13'1"), The conservatory has panoramic views over the garden and fields beyond. It benefits from bamboo flooring and a gas central heating radiator.
Kitchen: 2.80m x 3.50m (9'2" x 11'6"), The kitchen / diner benefits from a range of modern wall and base units with a solid granite worktop and oak floors. There is a built-in electric double oven, a ceramic hob and stainless-steel cooker hood. The kitchen also features a double Belfast sink and space for a freestanding under counter fridge or freezer. There is a UPVC double glazed window overlooking the garden, and a UPVC double glazed door leading to the side of the property.
Diner: 4.75m x 2.75m (15'7" x 9'0"), The dining area benefits from the same oak floors and a UPVC double glazed sliding patio door leading to the front garden. There is also a walk-in pantry for additional storage and a high level UPVC double glazed window providing extra natural light.
WC: 0.90m x 1.60m (2'11" x 5'3"), The downstairs WC benefits from a modern white suite including a push button toilet and wash hand basin with mixer tap and matching pedestal. There is a UPVC double glazed window and a gas central heating radiator.
Bedroom 1: 3.55m x 3.55m (11'8" x 11'8"), Bedroom 1 is located to the front of the property over the lounge. It benefits from built-in wardrobes and matching dressing table, a large dormer window, and a gas central heating radiator.
Bedroom 2: 2.75m x 3.65m (9'0" x 11'12"), Bedroom 2 is located to the front of the property over the dining area. It benefits from built-in wardrobes and matching cupboards, a large dormer window, and a gas central heating radiator.
Bedroom 3: 2.75m x 2.55m (9'0" x 8'4"), Bedroom 3 is located to the back of the property over the kitchen. It benefits from a large dormer window and a gas central heating radiator.
Bedroom 4: 3.65m x 2.60m (11'12" x 8'6"), Bedroom 4 is located to the back of the property over the lounge. It benefits from a large dormer window and a gas central heating radiator.
Bathroom: 2.15m x 1.65m (7'1" x 5'5"), The bathroom is located over the hallway and benefits from a modern white suite including a bath with mixer taps and a mixer shower with glass screen, a push button toilet and a wash hand basin with mixer tap and matching pedestal. The room also features a large dormer window and a gas central heating towel radiator.
Outside: To the front of the property there is a large tarmac driveway providing parking for 3 vehicles and a freestanding double garage complete with power. To the rear of the property there is a stunning garden featuring a large lawn, several mature trees, a gravelled seating area and a wooden summer house. The property backs on to Queniborough brook and boasts views over the open fields behind.
Council Tax: Band D
Agents Notes: 1: Money laundering regulations - Intending purchasers will be asked to produce identification documentation at a later stage and we would ask for your co-operation in order that there will be no delay in agreeing the sale.
2: These particulars do not constitute part or all of an offer or contract.
3: The measurements indicated are supplied for guidance only and as such must be considered incorrect.
4: Potential buyers are advised to recheck the measurements before committing to any expense.
5: Fair-Way Properties has not tested any apparatus, equipment, fixtures, fittings or services and it is in the buyer's interest to check the working condition of any appliances.
6: Fair-Way Properties has not sought to verify the legal title of the property and the buyers must obtain verification from their solicitor.































































































