Copeland Avenue, Leicester, LE3
- Full Details
- Floor Plans
- EPC
- Map
- Virtual Tour
- Stamp Duty
- Rental Yield Calculator
Full Details
Full Details
Fair-Way Properties are pleased to present this 3 bed detached house located off Groby Road. The property is close to local amenities and provides excellent transport links to the A50 & A563. Downstairs briefly comprises of an entrance porch, a hallway that leads to a large living room with a gas fire and a sliding patio door that overlooks the garden, and a kitchen with space for a range cooker, a freestanding washing machine, and fridge freezer. There also a downstairs WC and an understairs cupboard. Upstairs there are 3 double bedrooms, 2 of the rooms benefitting from built-in wardrobes. There is also a family bathroom with white suite and shower over the bath. To the front of the property there is a driveway that provides parking for up to 3 vehicles and an integral single garage with an electric roller door. To the rear is an easy maintenance garden made up mainly of a large lawn area with a planter along one side and a small, decked area near the sliding patio doors. The property benefits from gas central heating and double glazing throughout.
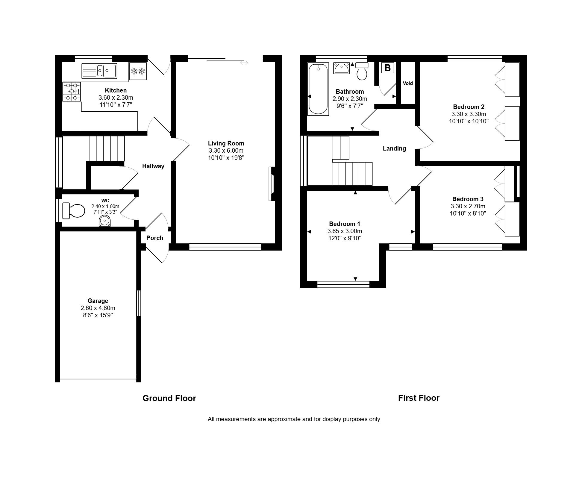
Hallway: 3.00m x 1.50m (9'10" x 4'11"), The hallway is accessed from the front of the property through the porch. The hallway provides access to the living room, kitchen, understairs cupboard and the WC. There is also a staircase that leads to the first floor. The room benefits from a gas central heating radiator and carpeted flooring.
Living Room: 3.30m x 6.00m (10'10" x 19'8"), The living room boasts dual aspect views with a UPVC window overlooking the front of the property and a large UPVC sliding patio door overlooking the garden. The room benefits from a gas fire with marble hearth and a wooden mantle, a gas central heating radiator and a wooden floor.
Kitchen: 3.60m x 2.30m (11'10" x 7'7"), The kitchen is located to the rear of the property and features a kitchen with a range of matching floor and wall units, a solid wood worktop, and spaces for a freestanding washing machine and range cooker. The kitchen also benefits from a UPVC double glazed window, a UPVC door and a gas central heating radiator.
WC: 2.40m x 1.00m (7'10" x 3'3"), The WC is located to the front of the property behind the garage. It benefits from a white toilet and a wall mounted wash hand basin. There is also a high-level window and a gas central heating radiator.
Bedroom 1: 3.65m x 3.00m (11'12" x 9'10"), Bedroom 1 is located to the front of the property over the hall and garage. It benefits from 2 UPVC double glazed windows and a gas central heating radiator.
Bedroom 2: 3.30m x 3.30m (10'10" x 10'10"), Bedroom 2 is located to the rear of the property over the living room. It benefits from a built-in wardrobe, a UPVC double glazed window and a gas central heating radiator.
Bedroom 3: 3.30m x 2.70m (10'10" x 8'10"), Bedroom 3 is located to the front of the property over the living room. It benefits from a built-in wardrobe, a UPVC double glazed window and a gas central heating radiator.
Bathroom: 2.90m x 2.30m (9'6" x 7'7"), The bathroom is located to the rear of the property over the kitchen. It benefits from a white suite, including a 'P' shaped bath with a shower off the taps, a push button toilet and a wash hand basin with a mixer tap. There is also a cupboard that houses the combination boiler and a high-level window with privacy glass.
Outside: To the front of the property there is a driveway that provides parking for up to 3 vehicles and an integral single garage with an electric roller door. To the rear is an easy maintenance garden made up mainly of a large lawn area with a planter along one side and a small, decked area near the sliding patio doors.
Council Tax: Band B
Agents Notes:
1: Money laundering regulations - Intending purchasers will be asked to produce identification documentation at a later stage and we would ask for your co-operation in order that there will be no delay in agreeing the sale.
2: These particulars do not constitute part or all of an offer or contract.
3: The measurements indicated are supplied for guidance only and as such must be considered incorrect.
4: Potential buyers are advised to recheck the measurements before committing to any expense.
5: Fair-Way Properties has not tested any apparatus, equipment, fixtures, fittings or services and it is in the buyer's interest to check the working condition of any appliances.
6: Fair-Way Properties nor any person in their employment, has any authority to make any representation or warranty in relation to the property.
7: Fair-Way Properties has not sought to verify the legal title of the property, and the buyers must obtain verification from their solicitor.
8: Lease details, service ground rent (where applicable) are given as a guide only and should be checked and confirmed by your solicitor prior to exchange of contracts.

























































